Nově vystavěné byty ve stávajícím objektu. Každý být jako samostatná jednotka (vodoměr,elektroměr) Ve všech bytech proběhla výměna oken za plastová okna s izolačním trojsklem. Každý byt je vybaven elektrokotlem s kombinací ohřevu vody. Kuchyně jsou vybaveny zásuvkou na 400V. Byty na jižní stranu mají velké balkónové dveře s Francouzským zábradlím.
Byty jsou momentálně bez podlah a kuchyňské linky a bez osvětlení. V případě prodeje, je možné se s kupcem domluvit na následným dovybavením.
V další etapě výstavby je v plánu: výtah do všech pater, kočárkárna, kolárna, nabíjecí stanice na elektrická auta, balkóny na jižní stranu.
Nabídka bytů

B16
Byt B16 1KK 1. patro
Podlahová plocha celkem: 32,5m2
Chodba: 2,4m2
Obytná místnost + kuchyně: 20,8
Vyvýšené patro: 6,4m2
Koupelna + WC: 2,9m2

B16 ceny
Pronájem 12/25: 13 000,- + energie
Prodej 12/26: 3 400 000,-

B16

B16

B16

B16

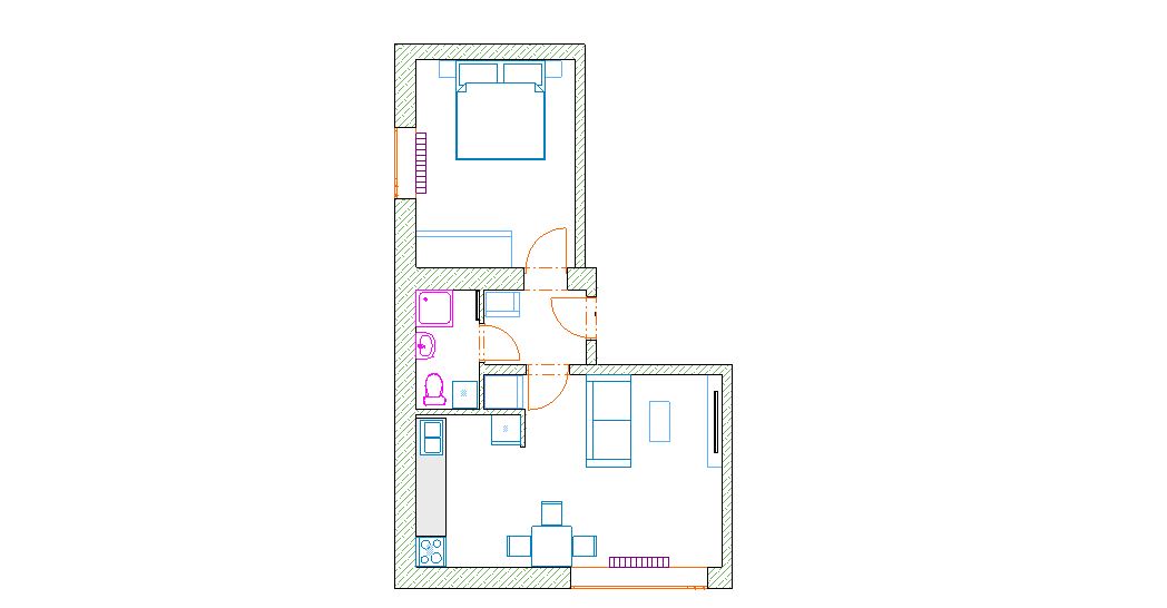
B17
Byt B17 2KK 1. patro
Podlahová plocha celkem: 42,2 m2
Chodba: 2,7m2
Obytná místnost + kuchyně: 22,6m2
Pokoj: 13,4m2
Koupelna + WC: 3,5m2

B17 ceny
Pronájem: 15 000,. + energie
Prodej 12/26: 4 500 000,-

B15
Byt B15 1KK 1. patro
Podlahová plocha celkem: 32,5m2
Chodba: 2,4m2
Obytná místnost + kuchyně: 20,8
Vyvýšené patro: 6,4m2
Koupelna + WC: 2,9m2

B15 ceny
Pronájem 12/25: 13 000,- + energie
Prodej 12/26: 3 400 000,-

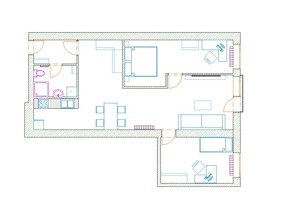
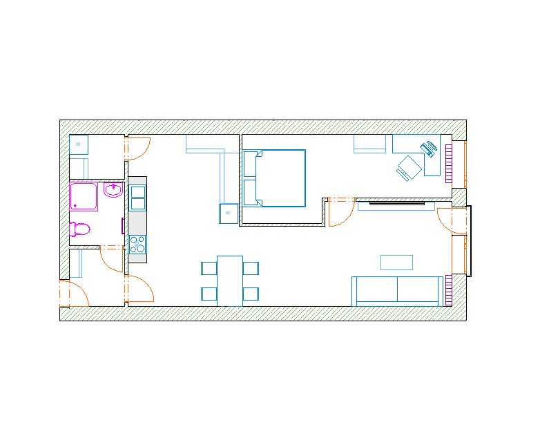
B13
Byt B13 3KK 1. patro
Podlahová plocha celkem: 75,5m2
Chodba: 3m2
Obytná místnost + kuchyně: 39m2
Pokoj: 15,3 m2
Ložnice: 12,2m2
Koupelna + WC: 6m2

B13 ceny
Pronájem 12/25: 16 000,- + energie
Prodej 12/26: 5 900 000,-

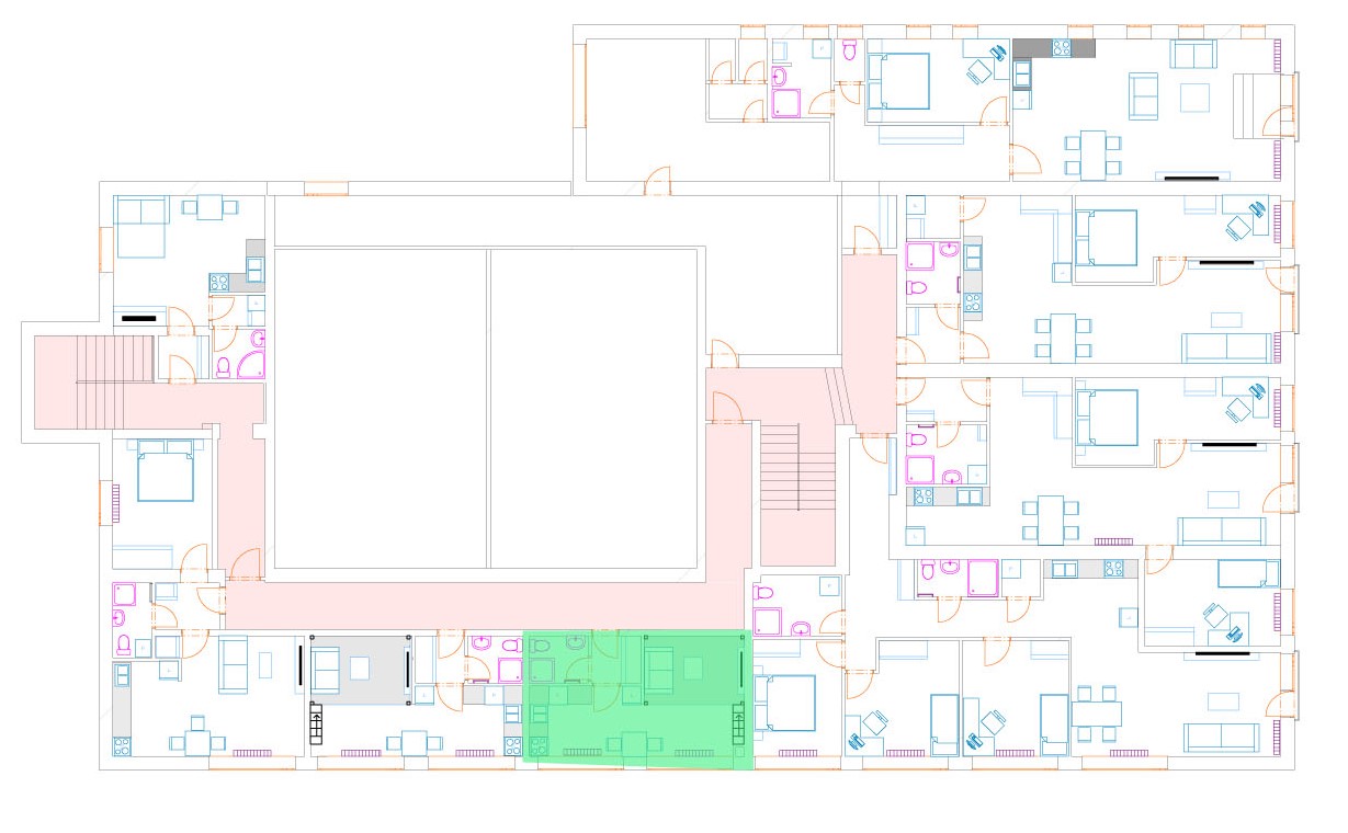
B12
Byt B12 2KK 1. patro
Podlahová plocha celkem: 64m2
Chodba: 3,2m2
Obytná místnost + kuchyně: 39m2
Pokoj: 15,3 m2
Koupelna + WC: 3,5m2
Technická místnost: 2,4m2

B12 ceny
Pronájem 12/25: 15 500,- + energie
Prodej 12/26: 5 500 000,-

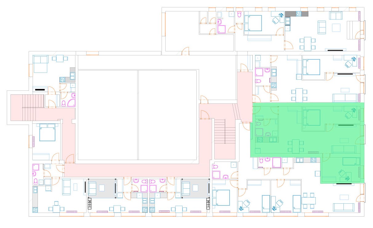
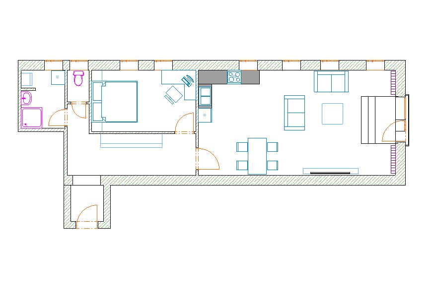
B11
Byt B11 2KK 1. patro
Podlahová plocha celkem: 75m2
Chodba: 16,4m2
Obytná místnost + kuchyně: 40m2
Pokoj: 12 m2
Koupelna : 5m2
WC: 1,6m2

B11 ceny
Pronájem 12/25: 15 500,- + energie
Prodej 12/26: 5 500 000,-